Free Change Order Slip Template
Are you looking for a free change order slip template to streamline your project management process? Look no further! Change orders are a common occurrence in construction projects, and having a well-designed template can help you keep track of all the modifications and revisions.
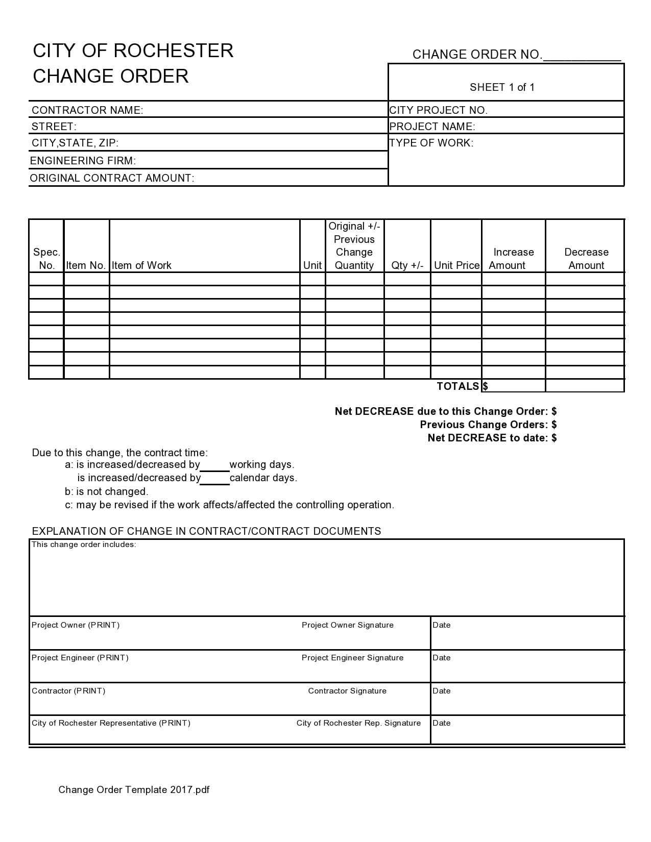
With our free change order slip template, you can easily document any changes to the original scope of work, including cost adjustments, timeline modifications, and additional requirements. This template is user-friendly and customizable to suit your specific project needs.
Free Change Order Slip Template
Free Change Order Slip Template
Our change order slip template includes fields for project details, description of the change, reason for the modification, cost impact, and approval signatures. By using this template, you can ensure clear communication and transparency throughout the change order process.
Whether you are a contractor, subcontractor, or project manager, having a standardized change order slip template can help you avoid disputes and delays. By documenting changes in a structured format, you can minimize confusion and ensure that all stakeholders are on the same page.
Don’t let change orders derail your construction project. Download our free change order slip template today and take control of your project management process. With this template, you can efficiently track and manage changes, keeping your project on schedule and within budget.
Streamline your change order process with our user-friendly template and focus on what matters most – completing your project successfully. Download our free change order slip template now and simplify your project management workflow.
45 Free Change Order Templates Word Excel PDF TemplateArchive
45 Free Change Order Templates Word Excel PDF TemplateArchive
Complete Collection Of Free Change Order Forms Smartsheet
Free Change Order Templates Download Print Construction Forms In PDF Office GDocs
Free Change Order Form Construction PDF Word EForms




